Z641H氣動閘閥
Z641H氣動閘閥廣泛適用于石油、化工、水力、火力發電廠等油品、水蒸氣管路上作接通或截斷管路中介質的啟閉裝置。適用于公稱壓力PN1.6~16.0MPa,工作溫度≤-29℃~550℃的管路系統上,作為切斷或接通管路介質。適用介質為:水、油品、蒸氣、及酸、堿、氨、尿素、含硫天然氣等。
|
產品名稱: |
氣動閘閥 |
產品型號: |
Z641H |
|
公稱通徑: |
DN15~DN1000 |
結構形式: |
閘板式 |
|
公稱壓力: |
1.6Mpa~6.4Mpa |
連接方式: |
法蘭 |
|
適用溫度: |
-20ºC~+150ºC~425ºC~550ºC |
驅動方式: |
氣動帶手動 |
|
閥體材質: |
WCB、鑄鋼、碳鋼、不銹鋼、鉻鉬鋼 |
制造標準: |
國標GB、德國DIN、美國API、ANSI |
|
適用介質: |
水、油、蒸汽 |
生產廠家: |
上海凱利科閥門有限公司 |
產品說明
Z641H氣動閘閥廣泛適用于石油、化工、水力、火力發電廠等油品、水蒸氣管路上作接通或截斷管路中介質的啟閉裝置。適用于公稱壓力PN1.6~16.0MPa,工作溫度≤-29℃~550℃的管路系統上,作為切斷或接通管路介質。適用介質為:水、油品、蒸氣、及酸、堿、氨、尿素、含硫天然氣等。
產品特點
1、結構緊湊、設計合理、閥門剛性好、通道流暢,流量系數小
2、密封面采用不銹鋼和硬質合金,使用壽命長
3、采用柔性石墨填料、密封可靠,操作輕便靈活
4、驅動方式為手動、氣動、電動、齒輪傳動
5、結構形式為彈性楔式單閘板、剛性楔式單閘板雙閘板型式
產品介紹
Z641H氣動閘閥是具有氣動執行機構(雙層氣缸,并帶有緩沖機構)和手動及其保護機構(手動和可自鎖的氣動-手動轉換裝置)的低支架明桿氣動閘閥。該閥由于采用雙層氣缸結構,其與單氣缸式氣動閘閥相比,提升力增大了一倍。這就從根本上解決了單氣缸氣動閘閥的某些閥體內楔死而打不開的弊病。而且,由于氣動閘閥具備緩沖機構,能有效地減速輕了關閉氣動閥門時,由于活塞下行沖擊而造成的閥板車密封面和閥體密封面的磨損,同時,也能避免閘板卡死的現象。為了配合用戶實現操作自動化,本公司除供應本系列產品之外,還可單獨提供包括支架在內的氣缸體,幫助用戶對已有的種類繁多的手動閘閥進行改造,將雙缸氣動執行機構部分安裝在手動閘閥的閥體大蓋上,即可構成雙缸式氣動-手動兩用閘閥。由于其技術先進,性能可靠,操作切換和維修方便,已被石油、化工、冶金、電力、海運等部門作為輸送氣體、液體介質的管道開閉裝置而廣泛使用。
主要零件材料
|
閥體、閥蓋、閥板 |
鑄鋼 |
|
閥體及閘板的密封面 |
合金鋼 |
|
閥桿 |
不銹鋼 |
|
雙頭螺栓 |
35號鋼 |
|
氣缸 |
20號無縫鋼管 |
|
活塞 |
鑄鋁合金 |
|
手動螺母 |
青銅 |
|
密封圈 |
石棉橡膠板、纏繞式金屬石墨墊片 |
|
活塞環及軸環 |
耐油橡膠○型圈 |
|
填料函 |
石墨石棉繩 |
主要性能參數
|
型號 |
公稱壓力PN(MPa) |
閥體試驗壓力 PN(MPa) |
|
|
|
|
強度試驗 |
密封試驗 |
|
|
Z641H-10 |
1.6 |
2.4 |
1.6 |
|
|
Z641H-25 |
2.5 |
3.8 |
2.5 |
|
|
Z641H-40 |
4.0 |
6.0 |
4.0 |
|
|
Z641H-64 |
6.4 |
9.6 |
6.4 |
|
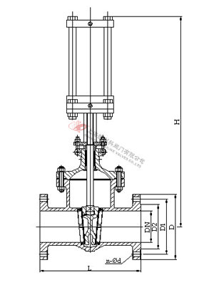
外形結構圖
主要外形和連接尺寸
|
公稱通徑 DN |
L |
D |
D1 |
D2 |
b |
Z-Φd |
H |
H1 |
D0 |
WT(Kg) |
|
型號:Z641H-16C、Z641H-16P、Z641H-16R、Z641H-16I |
|
50 |
250 |
160 |
125 |
100 |
16 |
4-Φ18 |
950 |
570 |
180 |
36 |
|
65 |
270 |
180 |
145 |
120 |
18 |
4-Φ18 |
1050 |
596 |
180 |
53 |
|
80 |
280 |
195 |
160 |
135 |
20 |
8-Φ18 |
1080 |
635 |
200 |
72 |
|
100 |
300 |
215 |
180 |
155 |
20 |
8-Φ18 |
1145 |
645 |
250 |
90 |
|
125 |
325 |
245 |
210 |
185 |
22 |
8-Φ18 |
1210 |
685 |
250 |
120 |
|
150 |
350 |
280 |
240 |
210 |
24 |
8-Φ18 |
1300 |
720 |
320 |
132 |
|
200 |
400 |
335 |
295 |
265 |
26 |
12-Φ23 |
1660 |
940 |
400 |
258 |
|
250 |
450 |
405 |
355 |
320 |
30 |
12-Φ25 |
1790 |
1020 |
400 |
297 |
|
300 |
500 |
460 |
410 |
375 |
30 |
12-Φ25 |
1990 |
1150 |
450 |
420 |
|
350 |
550 |
520 |
470 |
435 |
34 |
16-Φ25 |
2090 |
1170 |
450 |
558 |
|
400 |
600 |
580 |
525 |
485 |
36 |
16-Φ30 |
2290 |
1325 |
500 |
840 |
|
450 |
650 |
640 |
585 |
545 |
40 |
20-Φ30 |
2485 |
1465 |
500 |
1110 |
|
500 |
700 |
705 |
650 |
608 |
44 |
20-Φ34 |
2640 |
1590 |
550 |
1380 |
|
600 |
800 |
840 |
770 |
718 |
48 |
20-Φ41 |
2940 |
1720 |
550 |
1620 |
|
700 |
900 |
910 |
840 |
788 |
50 |
24-Φ41 |
3450 |
1960 |
600 |
1966 |
|
800 |
1000 |
1020 |
950 |
898 |
52 |
24-Φ41 |
3650 |
2190 |
600 |
2282 |
|
900 |
1100 |
1120 |
1050 |
998 |
54 |
28-Φ41 |
3815 |
2400 |
800 |
2495 |
|
1000 |
1200 |
1255 |
1170 |
1110 |
56 |
28-Φ48 |
4000 |
2650 |
800 |
2760 |
主要外形和連接尺寸
公稱通徑
DN |
L |
D |
D1 |
D2 |
b |
Z-Φd |
H |
H1 |
D0 |
WT
(Kg) |
|
型號:Z641H-25C、Z641H-25P、Z641H-25R、Z641H-25I |
|
50 |
250 |
160 |
125 |
100 |
20 |
4-Φ18 |
950 |
570 |
180 |
38 |
|
65 |
270 |
180 |
145 |
120 |
22 |
8-Φ18 |
1050 |
596 |
180 |
55 |
|
80 |
280 |
195 |
160 |
135 |
22 |
8-Φ18 |
1080 |
635 |
200 |
76 |
|
100 |
300 |
230 |
190 |
160 |
24 |
8-Φ23 |
1145 |
645 |
250 |
94 |
|
125 |
325 |
270 |
220 |
188 |
28 |
8-Φ25 |
1210 |
685 |
250 |
126 |
|
150 |
350 |
300 |
250 |
218 |
30 |
8-Φ25 |
1300 |
720 |
320 |
136 |
|
200 |
400 |
360 |
320 |
278 |
34 |
12-Φ25 |
1660 |
940 |
400 |
265 |
|
250 |
450 |
425 |
370 |
332 |
36 |
12-Φ30 |
1790 |
1020 |
400 |
300 |
|
300 |
500 |
485 |
430 |
390 |
50 |
16-Φ30 |
1990 |
1150 |
450 |
436 |
|
350 |
550 |
550 |
490 |
448 |
44 |
16-Φ34 |
2090 |
1170 |
450 |
580 |
|
400 |
600 |
610 |
550 |
505 |
48 |
16-Φ34 |
2290 |
1325 |
500 |
860 |
|
450 |
650 |
660 |
600 |
555 |
50 |
20-Φ34 |
2485 |
1465 |
500 |
1260 |
|
500 |
700 |
730 |
660 |
610 |
52 |
20-Φ41 |
2640 |
1590 |
550 |
1420 |
|
600 |
800 |
840 |
770 |
718 |
56 |
20-Φ41 |
3940 |
1720 |
550 |
1710 |
|
700 |
900 |
955 |
875 |
815 |
60 |
24-Φ48 |
3450 |
1960 |
600 |
2105 |
|
800 |
1000 |
1070 |
990 |
930 |
64 |
24-Φ48 |
3650 |
2190 |
600 |
2310 |
|
900 |
1100 |
1180 |
1090 |
1025 |
66 |
28-Φ54 |
3815 |
2400 |
800 |
2620 |
|
1000 |
1200 |
1305 |
1210 |
1140 |
68 |
28-Φ58 |
4000 |
2650 |
800 |
2960 |
主要外形和連接尺寸
公稱通徑
DN |
L |
D |
D1 |
D2 |
D6 |
b |
Z-Φd |
H |
H1 |
D0 |
WT
(Kg) |
|
型號:Z641H-40C、Z641H-40P、Z641H-40R、Z641H-40I |
|
50 |
250 |
160 |
125 |
100 |
88 |
20 |
4-Φ18 |
950 |
570 |
200 |
42 |
|
65 |
280 |
180 |
145 |
120 |
110 |
22 |
8-Φ18 |
1050 |
596 |
200 |
68 |
|
80 |
320 |
195 |
160 |
135 |
121 |
22 |
8-Φ18 |
1080 |
635 |
250 |
84 |
|
100 |
350 |
230 |
190 |
160 |
150 |
24 |
8-Φ23 |
1145 |
645 |
320 |
102 |
|
125 |
400 |
270 |
220 |
188 |
176 |
28 |
8-Φ25 |
1210 |
700 |
320 |
135 |
|
150 |
450 |
300 |
250 |
218 |
204 |
30 |
8-Φ25 |
1330 |
750 |
400 |
156 |
|
200 |
550 |
375 |
320 |
282 |
260 |
38 |
12-Φ30 |
1660 |
940 |
400 |
276 |
|
250 |
650 |
445 |
385 |
345 |
313 |
42 |
12-Φ34 |
1820 |
1050 |
450 |
306 |
|
300 |
750 |
510 |
450 |
408 |
364 |
46 |
16-Φ34 |
1990 |
1150 |
450 |
510 |
|
350 |
850 |
570 |
510 |
465 |
422 |
52 |
16-Φ34 |
2110 |
1190 |
500 |
720 |
|
400 |
950 |
655 |
585 |
535 |
474 |
58 |
16-Φ41 |
2335 |
1370 |
550 |
1050 |
|
450 |
1050 |
680 |
610 |
560 |
524 |
60 |
20-Φ41 |
2490 |
1510 |
550 |
1320 |
|
500 |
1150 |
755 |
6720 |
612 |
576 |
62 |
20-Φ48 |
2640 |
1590 |
550 |
1800 |
|
600 |
1350 |
890 |
795 |
730 |
678 |
62 |
20-Φ54 |
2940 |
1720 |
600 |
2160 |
使用說明
1、本閥主要由閥體、閥蓋、閘板、閥桿、密封圈、雙層氣缸及其活塞、活塞桿、隔板連同緩沖機構、手動機構、氣動-手動轉換裝置和閥蓋填料裝置等部分組成。
2、上活塞行至行程上端可頂上上回訊器,使之發訊;下活塞行之行程下端可頂下下回訊器,使之發訊,以作為閘閥開閉信息在中央操作室的模擬儀表盤上進行顯示。
3、手輪上部的外伸指示桿的上升和下降,標志著該閥的閘板是處于提升狀態還是下降狀態。閘閥關閉時,外伸指示桿位于最低位置;反之,閘閥全開時,外伸指示桿位于最高位置。此即為本閥啟閉狀態的現場指示。
4、氣缸蓋上部裝有氣動-手動轉換裝置。將轉換手柄順時針方向提轉到“氣動”定位孔定位,閘閥處于氣動操作狀態;反之,將轉換手柄逆時針方向提轉到“手動”定于孔處定位,閘閥即可進行手動操作。帶錐齒輪的手柄轉換方向相反。 手動操作閘閥時,手輪旋向和普通手動閥一樣,即順時針轉為關,逆時針轉為開。帶錐齒輪轉動的相反。
注意事項
1、手輪、手柄及傳動機構均不允許作起吊用,并嚴禁碰撞。
2、雙閘板閘閥應垂直安裝(即閥桿處于垂直位置 , 手輪在頂部 )。
3、帶有旁通閥的閘閥在開啟前應先打開旁通閥(以平衡進出口的壓差及減小開啟力 )。
4、帶傳動機構的閘閥,按產品使用說明書的規定安裝。
5、如果閥門經常開關使用 , 每月至少潤滑一次。
聲明:【Z641H氣動閘閥】規格型號、結構尺寸由上海凱利科閥門有限公司提供,如何選擇適用的Z641H氣動閘閥產品,使之在工藝控制中安全可靠、經濟適用,可致電我司銷售部門及技術部門,我們將在最短的時間內為您解答! |